東成区大今里2丁目
大阪市東成区大今里2丁目
Osaka Metro 千日前線 「新深江」駅
徒歩約10分 約800m
Osaka Metro 今里筋線 「今里」駅
徒歩約10分 約800m
9,170万円
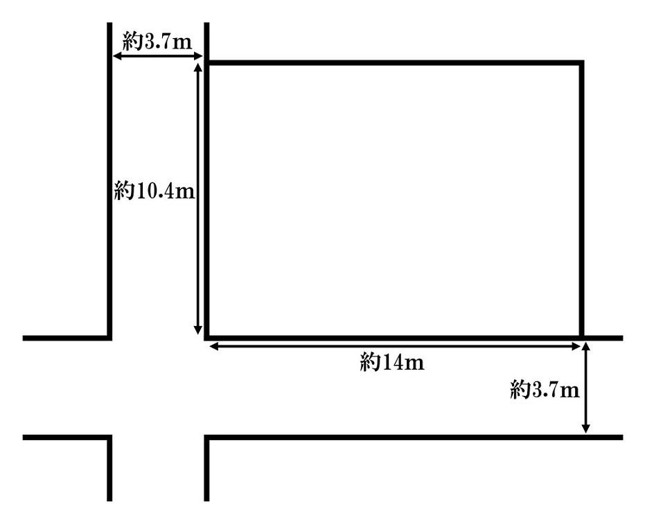
![]() 土地形状図 |
![]() 現地写真 |
画像、間取りをクリックしていただくと大きな画像でご覧いただけます。
| 価格 |
9,170万円
|
||
|---|---|---|---|
| 所在地 | 大阪市東成区大今里2丁目 | ||
| 交通 |
Osaka Metro 千日前線 「新深江」駅
徒歩約10分 約800m
Osaka Metro 今里筋線 「今里」駅 徒歩約10分 約800m |
||
| 土地面積 | 199.43m2 60.3坪 |
建物面積 | |
| 土地権利 | 所有権 |
|---|---|
| 建ぺい率/容積率 | 80%/200% |
| 接道状況 |
私道 南 約3.7 m
私道 西 約3.7 m |
| 私道面積 | 47.89m214.5坪 |
| 地目 | 宅地 |
| 地勢 | 平坦 |
| 用途地域 | 第1種住居地域 |
| 都市計画 | 市街化区域 |
| 駐車場 | 無し |
| 学校区 |
神路小学校
相生中学校 |
| 現況/時期 |
更地
相談 |
| 取引態様 | 仲介 |
| 情報更新日 | 2024/06/14 |
| 備考 | ※現状有姿 ※公簿取引 ※契約不適合責任免責(地中埋設物も含む) |
★建築条件なし
★角地
個人情報保護方針についてはこちらをご覧ください。




















