此花区酉島2丁目
大阪市此花区酉島2丁目
阪神なんば線 「伝法」駅
バス乗車3分 「酉島小学校」バス停より徒歩4分 バス停より約320m
818万円
建物価格:2,058万円
土地+建物セット価格:2,876万円
![]() 参考プラン図 |
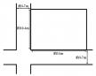
![]() 土地形状図 |
画像、間取りをクリックしていただくと大きな画像でご覧いただけます。
この参考プランは一例ですので、必ず採用する義務はありません。
| 価格 |
818万円
建物価格:2,058万円 土地+建物セット価格:2,876万円 |
||
|---|---|---|---|
| 所在地 | 大阪市此花区酉島2丁目 | ||
| 交通 |
阪神なんば線 「伝法」駅 バス乗車3分 「酉島小学校」バス停より徒歩4分 バス停より約320m |
||
| 間取り | 3LDK (LDK 13.9帖 洋室 約5.7帖 洋室 約5.7帖 洋室 約5.7帖 ) | ||
| 築年月 | 建物構造 | 木造 3階建て |
|
| 土地面積 | 41.34m2 12.5坪 |
建物面積 | 79.50m2 約24.04坪 |
| 建築条件付きとは | この土地は、土地売買契約後3ヶ月以内に当社と住宅建築請負契約を結んで頂くことを条件として販売します。土地契約後直ちに建築設計の協議をして頂きますが、3ヶ月以内に住宅の建築請負契約が成立しない場合は、土地売買は白紙解約となり申込金その他お預かりした金銭は全額無条件で速やかに返還します。 | ||
| 土地権利 | 所有権 |
|---|---|
| 建ぺい率/容積率 | 80%/200% |
| 接道状況 | 私道 北東 約2.6 m |
| 私道面積 | 6.89m22.08坪 |
| 地目 | 宅地 |
| 地勢 | 平坦 |
| 用途地域 | 第1種住居地域 |
| 都市計画 | 市街化区域 |
| 駐車場 | 無し |
| 学校区 |
酉島小学校
梅香中学校 |
| 現況/時期 | 上物あり 着工後 約3ヶ月 |
| 取引態様 | 仲介 |
| 情報更新日 | 2025/08/26 |
★自由設計!!
★酉島小学校徒歩約1分!!
個人情報保護方針についてはこちらをご覧ください。



































バス乗車3分 「酉島小学校」バス停より徒歩4分 バス停より約320m